Kleine aber feine Doppelhaushälfte in Oberricklingen
Eckdaten
- Art Doppelhaushälfte
- Lage 30459 Hannover
- Kaufpreis 375.000,00 €
- Wohnfläche ca. 120 m²
- Grundstück ca. 438 m²
- Zimmer 6
- Baujahr 1921
- Etagenzahl 2
- Alt-/Neubau Altbau
- Heizungsart Zentralheizung
- Einbauküche ja
- Gäste-WC ja
- Stellplatztyp Garage
- Stellplatzanzahl 1
- Garagenanzahl 1
- Vermietet nein
- Bezugstermin sofort
- Bodenbelag Laminat Teppichboden
- Ausstattung des Bades Dusche Fenster
- Zustand Gepflegt
- Immobilien-ID 134558417
- Provision 2,975 inkl. MwSt.
Geschäftsführer
Immobilie
Sie können eine besondere Immobilie erwerben: in gefragter Lage von Oberricklingen eine Oase der Ruhe und doch verkehrsgünstig gelegen.
Die in den 20er-Jahren erbaute Doppelhaushälfte liegt in Ost-West-Ausrichtung auf einem schmalen Grundstück. Im hinteren Bereich schließt sich der hübsch angelegte Garten zum Westen hin an. Hier kann man herrlich die Nachmittags- und Abendstunden verbringen.
Das Grundstück liegt in einer ruhigen Nebenstraße ohne direkten Durchgangsverkehr. In wenigen Gehminuten erreicht man die Straßenbahn und auch ein beliebtes Einkaufszentrum.
Die 1920 gebaute Doppelhaushälfte wurde ursprünglich als Einfamilienwohnhaus errichtet. In den 50er Jahren wurde das Haus umgebaut und im hinteren Bereich weitere Räumlichkeiten angebaut. Ein neben dem hinteren Teil stehende Garage rundet das Angebot ab.
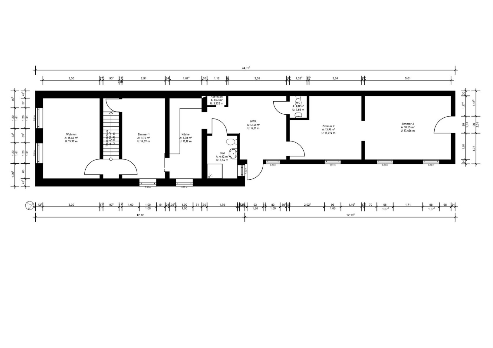
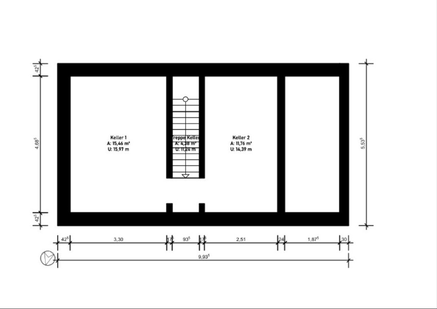
Es gibt einen vorderen Eingang, der direkt in einen kleinen Flur mündet. Hier führt die Treppe ins Obergeschoss. Links schließt sich ein gut geschnittenes Wohnzimmer an, rechts gelangt man in ein Durchgangszimmer, welches sich hervorragend als Esszimmer nutzen lässt. Von diesem Zimmer gelangt man durch eine Schiebetür in die Küche. Ebenfalls vom Esszimmer aus erreicht man den Keller. Dieser befindet sich nur unter dem 1920 erbauten Teil des Hauses und besteht im Wesentlichen aus zwei Kellerräumen mit kleineren Nischen und Abteilungen. Der Keller weist nur eine geringe Deckenhöhe auf und ist nur als Lagerkeller geeignet.
Von der Küche erreicht man über eine kleine Treppe den 1950 angebauten Teil. Man gelangt direkt in einen als Hauswirtschaftsraum genutzten Raum. Von diesem geht das erst neu ausgebaute und barrierearme Bad ab. Ebenfalls erreicht man hier das praktische Gäste-WC. Weiterhin liegt hier der zweite, als Haupteingang genutzte, Eingang. Dieser führt direkt auf den Hof und zur Garage. Einkäufe lassen sich so schnell und ohne großen Aufwand ins Haus schaffen.
Hinter dem Hauswirtschaftraum befindet sich eine weiterer Durchgangsraum und im Anschluss das Gartenzimmer mit Ausgang zur überdachten Terrasse. Hier bietet sich die Einrichtung eines geräumigen Wohnzimmers an.
Von der Terrasse hat man Zugang zum idyllischen Garten. Ein weiterer Zugang zum Garten befindet sich vom Hof aus zwischen Anbau und Garage. Rückseitig an die Garage ist ein kleiner Abstellraum angebaut, in dem praktischerweise die Gartengeräte verstaut werden können.
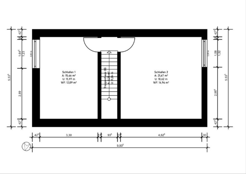
Im Obergeschoss des Haupthauses befinden sich zwei weitere Zimmer, die als Schlaf- und Kinderzimmer genutzt wurden.
Das Schlafzimmer verfügt über ein Waschbecken. Hier könnte ggf. ein weiteres kleines Bad entstehen.
Vom oberen Treppenpodest erreicht man über eine Luke den Dachboden mit Stehhöhe. Hier würde sich für Kinder eine Schlafebene mit Zugang aus den jeweiligen Zimmern einrichten lassen. Somit könnte ein separater Kinderbereich entstehen.
Das Haus wurde immer Instand gehalten und teilweise auch energetisch modernisiert. Die Fassade wurde Anfang der 90er Jahre mit Dämmung und Riemchen-Verblendern versehen. Zuletzt wurden noch 2025 Fenster ausgetauscht.
Lage
Die Doppelhaushälfte befindet sich im Stadtbezirk Ricklingen in Hannover. Zentral gelegen und dennoch im Grünen, bietet Ricklingen nicht nur Großstadtflair, sondern auch entspannte Stunden in der Natur. Dieser Stadtteil zeichnet sich durch seine ruhige und familienfreundliche Atmosphäre aus. Hier findet man zahlreiche Grünflächen und Parks, die zum Entspannen und Spazieren einladen. Einkaufsmöglichkeiten, Restaurants und Schulen sind in unmittelbarer Nähe zu finden. Die gute Verkehrsanbindung ermöglicht es, schnell in die Innenstadt zu gelangen. Ricklingen bietet zahlreiche Einkaufsmöglichkeiten, Apotheken, Ärzte sowie ein umfangreiches Bildungsangebot. Alles ist ohne weiteres fußläufig erreichbar
Neben den direkten Anschlüssen an den Messeschnellweg (B6) sowie den Südschnellweg und der damit gegebenen schnellen Verbindung an die Autobahnen 2, 7 und 37 befinden sich in unmittelbarer Nähe die Bahnlinien 3, 7, 13 und 17. Diese ermöglicht eine schnelle Verbindung von ca. 15 Minuten in die Innenstadt und den Hauptbahnhof Hannovers sowie die angrenzenden
Stadtgebiete.
Hannover ist die Hauptstadt von Niedersachsen und überzeugt mit einem vielfältigen kulturellen Angebot sowie einer attraktiven Innenstadt. Hier gibt es zahlreiche Sehenswürdigkeiten, Einkaufsmöglichkeiten und Restaurants. Die Stadt ist zudem für ihre grünen Oasen bekannt, wie den Maschsee oder den Herrenhäuser Gärten. Hannover bietet eine hohe Lebensqualität und eine gute Infrastruktur.
Die Region um Hannover besticht durch ihre natürliche Schönheit und Vielfalt. Hier kann man die Ruhe in der Natur genießen und gleichzeitig von der Nähe zur Großstadt profitieren. Die Umgebung lädt zu Ausflügen und Erkundungstouren ein, sei es in die nahe gelegenen Wälder und Wiesen oder zu historischen Stätten und Schlössern. Diese Region bietet somit eine gelungene Mischung aus städtischem Leben und ländlicher Idylle.
Ausstattung
6 Zimmer
1 Bad barrierearm, erneuert 2020
1 Gäste-WC
Terrasse
gepflegter Garten
Keller
Dachboden
Garage
Fenster in alle Wohnräumen mit Rollladen, erneuert zwischen 1997 und 2025
Haupt- und Nebeneingang
Thermoklinker 90er Jahre
Dacherneuerung 1982
Heizung 2006
Sonstiges
Wenn Sie dieses Angebot anspricht, übersenden Sie uns bitte eine Kontaktanfrage nebst E-Mail und Rufnummer.
Wenn Sie bedingt durch das gesetzliche Widerrufsrecht nicht 14 Tage warten möchten, bis Sie vollständige Objektunterlagen sowie die Anschrift der Immobile erhalten, benötigen wir eine ausdrückliche Zustimmung hierzu.
Eine ausführliche Belehrung über Ihr Widerrufsrecht, über unseren Umgang mit dem Datenschutz sowie unsere allgemeinen Geschäftsbedingungen senden wir Ihnen auf Nachfrage zu.
Wir weisen Sie an dieser Stelle bereits darauf hin, dass wir grundsätzlich für das durch uns übermittelte Informationsmaterial keine Gewährleistung übernehmen. Diese Angaben sind von Ihnen vor notariellem Vertragsabschluss zu prüfen. Eine Weitergabe verpflichtet zur Zahlung der Courtage, falls ein Dritter dadurch zum Vertragsabschluss kommt. Die Courtage inkl. MwSt. ist bei Abschluss eines Vertrages durch unseren Nachweis oder unsere Vermittlung fällig. Die Kontaktaufnahme zwischen Käufer und Verkäufer ist grundsätzlich über uns einzuleiten. Bei Direktverhandlungen ist auf uns Bezug zu nehmen und uns über das Ergebnis Nachricht zu geben. Soweit keine andere Regelung vereinbart ist, darf eine Besichtigung nur im Einvernehmen mit uns und der Verkäuferseite vorgenommen werden. Im Weiteren gelten die Allgemeinen Geschäftsbedingungen der HABITARIS GmbH.
Sie wollen auch eine Immobilie verkaufen? Wir helfen Ihnen gerne und haben den richtigen Käufer für Sie in unserer Kundenkartei. Sprechen Sie uns an.
Energieausweisangaben
- Enerigeausweistyp Bedarfsausweis
- Energiekennwert 185 KWh(m²*a)
- Energieeffizienzklasse F
- Energie mit Warmwasser ja
- Energieausweis erstellt am 17.06.2025
- Energieausweis gültig bis 17.06.2035
- Heizungsart Zentralheizung
- Befeuerung / Energieträger Gas
Weitere Informationen
Rechtliches
Die Käuferprovision beträgt 2,975 % inkl. der ges. MwSt. Fällig nach Beurkundung eines notariellen Kaufvertrages. Mit dem Verkäufer dieser Immobilie wurde ein provisionspflichtiger Makleralleinauftrag in gleicher Höhe abgeschlossen.
Herzlichen Dank für Ihre Anfrage.
Wir werden diese so schnell wie möglich bearbeiten.


